Мы создаём интерьеры для застройщиков, девелоперов, инвесторов и риэлторов, предлагая решения в разных стилях — от классики до современного дизайна. Благодаря продуманной планировке и оформлению, мы способны увеличить ваши продажи в 2,5 раза. Мы разрабатываем типовые проекты для домов, квартир и апартаментов, четко определяя задачи и создавая подробную документацию.
Дизайн-проект жилого комплекса для девелопера под ключ
На каждом этапе мы контролируем качество, освобождая ваше время для более важных задач. Мы работаем как в России, включая Краснодар, Москву и СПБ, так и за рубежом — в странах СНГ, Европы, Азии и США. Цена разработки дизайн-проекта для девелоперов рассчитывается индивидуально, в зависимости от геоположения и оригинальности идеи.






Этап 1
Техническое задание (ТЗ) — это важнейший этап в реализации дизайн-проекта. Мы учитываем данные анализа целевой аудитории (ЦА) для создания пространства, которое идеально соответствует потребностям будущих владельцев. В ТЗ прописываем такие параметры, как семейное положение, интересы, наличие детей или домашних животных, что позволяет нам закладывать основы функциональности и стиля будущего интерьера.
Этап 2
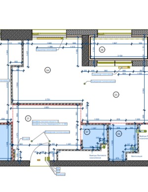
Планы и чертежи разрабатываются под клиента. Мы создаём планировки, которые точно отражают запросы будущих резидентов, будь то семейная пара или творческая личность. Наши решения позволяют каждому почувствовать себя в своём пространстве, обеспечивая комфорт и гармонию в предложенной обстановке.
Этап 3
Мы разрабатываем концепцию дизайна с учётом всех ваших пожеланий и предпочтений, а затем создаём 3D визуализацию, чтобы вы могли увидеть, как ваш будущий интерьер будет выглядеть в реальности. Реалистичные изображения помогут вам точно понять, как будет работать освещение, как сочетаться материалы и цвета.
Этап 4
Мы экономим ваше время и бюджет на поиск и покупку материалов и мебели, предлагая решения, которые подходят вашему стилю и запросам. С помощью проверенных поставщиков, мы обеспечиваем закупку с существенными скидками, не теряя в качестве. Мы контролируем поставки и соответствие материалов, тщательно организуем разгрузку на объект.
Этап 5
Мы подготавливаем детализированные документы, которые отражают суть технического процесса: чертежи, планы, узлы конструкций, особенности сборки и другие детали. Спецификация — это своего рода руководство для строительной бригады, в котором указаны все нюансы реализации дизайн-проекта.
Этап 6
Помимо спецификации, мы составляем пакет рабочей документации, который включает чертежи, 3D визуализации, эскизы и пояснительные записки. Эти документы дают полное представление о концепции, деталях цвета, света, расположении мебели, инженерных сетей и конструктивных особенностей проекта, обеспечивая точную и качественную реализацию задуманного.
Мы проектируем дизайн следующих типов:
тип 1
Подъезды жилых комплексов
Стильные места общего пользования (МОП) — это визитная карточка жилого комплекса и важный фактор восприятия объекта. Мы разрабатываем дизайн МОПов жилых домов, создавая функциональные и эстетичные пространства: коридоры, лестничные клетки, лифтовые холлы, зоны хранения и отдыха. Каждая деталь продумана — от планировки до материалов и освещения.
тип 2
Входные группы и общественные пространства
Дизайн входных групп и коммерческих МОПов интегрируется в общую архитектурную концепцию здания, особенно в проектах mixed-use. Мы создаём логичную и интуитивную навигацию, объединяя в одном пространстве ресепшн, лобби, зоны ожидания, коворкинг или кафе. В результате формируется целостный и престижный дизайн интерьера жилого комплекса.
тип 3
Квартиры на продажу
Мы выполняем комплектацию квартир под продажу, создавая готовый дизайн интерьера квартиры с мебелью, отделочными материалами и декором. Полностью контролируем процесс — от согласования сметы до финальной расстановки. Берём на себя закупки, взаимодействие с поставщиками, контроль производства и логистики, а также решение возможных рекламаций.
тип 4
Квартиры с отделкой white box
Для девелоперов мы разрабатываем проекты квартир с чистовой отделкой. В дизайн-проекте квартиры закладываются планировочные решения, инженерные системы и сценарии жизни. В результате покупатель получает пространство, готовое к проживанию и дальнейшему индивидуальному оформлению. Этот формат востребован и повышает ликвидность объекта.
тип 5
Апартаменты с меблировкой
Также мы создаём дизайн интерьера апартаментов с полной комплектацией мебелью и декором. Формируем стиль, исходя из позиционирования проекта и целевой аудитории девелопера. При необходимости проводим анализ и разрабатываем концепцию, которая повышает привлекательность и коммерческую эффективность объекта.
Примеры работ


Дизайн интерьера МОП в Гостинице в Севастополе
- площадь: 244 м2
- адрес: г. Севастополь, ул. Парковая
- тип дома: Новостройка
- статус проекта: 3D визуализация
- год реализации: 2025



Дизайн интерьера апартаментов в Гостинице в Севастополе №2
- площадь: 82 м2
- адрес: г. Севастополь, ул. Парковая
- тип дома: Новостройка
- статус проекта: 3D визуализация
- год реализации: 2025

Почему выбирают нас
Сотрудничать с бюро TB.Design выгодно
Поэтапная методика работы
Успешное строительство и дизайн-проект жилого дома возможен только через последовательную пошаговую работу. Мы отслеживаем качество на каждом этапе, строго соблюдаем сроки и вовремя сдаём отчетные документы, гарантируя прозрачность и эффективность выполнения проекта.
Глубокий анализ целевой аудитории
Процесс проектирования начинается с внимательного анализа вашей целевой аудитории. Мы исследуем запросы клиентов, чтобы точно понять стиль, уровень комфорта и технические предпочтения, попадая в самое сердце их потребностей и создавая именно то, что им нужно
Соответствие нормам ГОСТ и СНиП
На всех этапах проектирования мы строго соблюдаем строительные нормы и требования ГОСТ и СНиП. Мы просчитываем все возможные погрешности в чертежах, создаём высокотехнологичные и безопасные локации, обеспечивая долгосрочную эксплуатацию вашего объекта.
Баланс цена-качество
Дизайн-проект для девелоперов разрабатывается с учётом бюджета застройщика и сроков сдачи объекта. Мы оптимизируем затраты, не жертвуя качеством материалов, и подбираем лучшие решения в рамках доступного финансирования.
Консультации до завершения работ
Мы сопровождаем наших клиентов на всех этапах реализации проекта, всегда на связи и готовые предоставить консультации по любому вопросу. Прозрачность и информированность — ключевые принципы успешного сотрудничества с нами.
Соответствие результата с планом
Согласованная 3D визуализация служит ориентиром для всей команды. Мы гарантируем, что наши заказчики получат проекты, которые на 95-98% соответствуют чертежам, скетчам и 3D-графике, обеспечивая точное выполнение всех деталей.
стоимость дизайн-проекта девелоперов
Цена зависит от нескольких факторов, таких как площадь помещения, сложность проекта, выбранный архитектурный стиль и т.д. Чтобы рассчитать точную стоимость дизайн-проекта квартиры, необходимо обратиться в нашу студию дизайна. Специалисты проведут индивидуальную оценку проекта и подготовят коммерческое предложение.
